191 Washington Street 725 Boston Massachusetts Job 37607 0025 MLS.jpg

Penthouse-level corner condo at Stratus Residences, next to Boston Medical Center in Brighton

191 Washington St, #725, Brighton

About | Photos | Condo Amenities | Floor Plans | Location

Elevated penthouse with sweeping views and amenities for high-powered living

A welcoming concierge, curated art, and interior finishes that speak of quiet luxury set the stage as you enter the building; your journey home is paved with plush carpets and architectural lighting that softly guides your way. Here's your chance to live in a penthouse-level corner Unit 725, where sweeping, unobstructed views stretch out before you, framed by 8ft+ ceilings and an airy, open-concept kitchen. This is home in retreat - one where you could step out onto your private balcony for morning coffee under an open sky, or dine in dusk overlooking city lights. The Primary Bedroom offers a walk-in closet and ensuite bath with deep double vanities, while the secondary bedroom is equally well-appointed with two closets. Private storage (B710) on the same level, and 2 tandem parking spaces (28) in the garage below.

Beyond your door, this condo is rich with amenities to elevate daily living: gym with sauna, library, large and small conference rooms and gathering spaces, pool table, pet spa, dog run, and access to a stunningly repurposed chapel building with more share amenities. Grounds surrounding the building are wide open, inviting one to wander and reconnect with nature, all while being within a city center.

2 Bedrooms. 2 Baths . 2 Car Garage . Extra storage . 1,018 SqFt . Offered at $1,100,000

Modern open-concept kitchen and living room with white countertops, gray sofa, large windows, and a small dining table with four black chairs.

Unit Photos

Modern apartment dining area with a round glass table, four chairs, a white vase with greenery, large windows with blue and white curtains, and a white kitchen island with a black stool.
Open-concept living room and kitchen with modern decor, light wood floors, large windows with blue curtains, gray sofa, round dining table with black chairs, white kitchen with island and black stools, and a hallway leading to a bathroom in the background.
Modern kitchen with white cabinetry, marble backsplash, and a large white island with a built-in sink. Adjacent to the kitchen is a dining area with a round table and four chairs. Large windows with blue curtains let in natural light and offer a city view.
Modern kitchen with white cabinetry, marble backsplash, stainless steel appliances, and large windows with blue curtains overlooking a cityscape.
Modern kitchen with white island, three black barstools, gray curtains, light hardwood flooring, and white cabinets with marble backsplash.
Underground parking garage with three cars parked and unoccupied parking spaces numbered 27 and 28.
underground parking garage with parked cars, concrete pillars, and overhead pipes, illuminated by ceiling lights, with parking spaces marked by yellow lines and numbers
Modern multi-story apartment building with brick and white facade, balconies, and large windows, situated along a curved driveway with parked cars and leafless trees.
Interior corner of a modern apartment with large floor-to-ceiling windows, a small round glass dining table with a white vase holding green foliage, and two black dining chairs.
Modern living room with gray sectional sofa, patterned cushions, glass coffee table, abstract wall art, and large windows with beige curtains, overlooking cityscape.
Living room with a large window, light gray sofa with yellow and white pillows, abstract wall art, coffee table with books and decor, wooden floor, and a rug.
Living room with a sofa, abstract wall art, coffee table, and large windows with view of trees.
Cityscape viewed from a balcony with a metal railing, showing parking lots and beige buildings under a blue sky.
A small balcony with black metal railing, overlooking modern apartment buildings, with a sliding glass door and partial view of the interior.
View from a balcony showing a cityscape with buildings, parking lot, and a clear blue sky.
A bedroom with a bed, nightstands with lamps, and large windows with beige curtains showing an outdoor city view.
Empty closet with white wire shelf next to a bedroom with a bed, nightstand, lamp, and large window with beige curtains.
A bedroom with a neatly made bed, light-colored walls, a nightstand with a white lamp, framed artwork on the wall, and an open door leading to what appears to be a bathroom.
Modern bathroom with double sink vanity, two mirrors, wall-mounted lights, and white towels.
A modern bathroom with a double sink vanity, two mirrors, and two light fixtures above. There is a white towel hanging on a rack, a framed artwork on the wall, and a toilet with a small potted plant on the tank. Part of a shower with a glass door and a built-in shelf is visible.
Modern bathroom with a toilet and glass shower enclosure, decorated with a small potted plant and framed artwork on the wall.
A bedroom with a bed made with beige and patterned bedding, two bedside tables with lamps, a window with gray curtains, a framed painting on the wall, and a doorway leading to a bathroom with white tiles.
A bedroom with a large bed, beige tufted headboard, striped bedding, two nightstands with lamps, a window with gray curtains, and light-colored hardwood floors.
Empty bedroom with a bed in the foreground, an open closet with sliding doors, and a window with a view of buildings outside.
Modern bathroom with white walls, vanity, mirror, toilet, and bathtub with shower, decorated with black artwork and minimal accessories.
View of a living room with a large window and beige curtains, a gray sofa with colorful pillows, a coffee table, and a wooden side table, with a patterned rug on light hardwood flooring.
Small entryway with white door, wooden bench with beige cushion and pillows, decorative wall art, hardwood floor.
An elevator with wooden paneling next to a wall sign that reads "SEVEN" in a modern hotel corridor with a open door, potted plant, and ongoing hallway.
Empty storage closet with two potted plants inside, white walls, and a sign that reads "STORAGE B710" on the left wall.
View of two hotel room doors with room numbers 724 and 725. The hallway features dark walls with wooden trim, leading to a decorated sitting area with a bench, pillows, and a circular wall art piece in the adjacent room.

Condo Amenities

Fitness room with treadmills, stationary bikes, dumbbells, and workout benches, with large windows showing a cityview outside.
Hallway leading to a fitness area with exercise equipment, white walls, light wood floors, and a window at the end.
A modern fitness studio with white walls, floor-to-ceiling mirrors, and a flat-screen TV mounted on the wall. There are exercise balls and helmets with safety gear on a rack near a glass wall that separates the room from an adjacent space.
Indoor sauna room with wooden benches and a glass door located within a white wall area.
Interior of an office or lounge area with a pool table covered with a black cover, a blue accent wall with a window view, green chairs, and modern decor.
Modern dining or lounge area with blue walls, hardwood floors, large sliding glass doors leading to balcony, black pool table, green velvet bar stools, and small round dining table.
Modern living room with beige sofa, armchairs, wooden coffee table and large windows with sheer curtains, visible through an open elevator door with a sign labeled 'Sky Lounge'.
Modern living and dining room with a large dining table, multiple chairs, a white sofa, wall art, a flat-screen TV, and large windows and balcony doors allowing natural light.
Interior view of a modern lobby or lounge area with seating, bookshelves, and large windows with curtains.
Modern, well-lit hallway with green armchairs and small side tables on the right, and glass-enclosed conference rooms or offices on the left, with a white curtain covering large windows on the right side.
Interior hallway with bike storage area on right side, glass doors on left with bikes inside, geometric patterned flooring, white walls, and ceiling with exposed pipes and lighting fixtures.
Lobby with mailboxes on both sides, a black door in the center, a wall-mounted TV on the left, and a light fixture hanging from the ceiling.
Interior of a pet grooming spa with a wall decal featuring a cartoon dog in a bath, and text reading 'Pet Grooming SPA'. The room has geometric-patterned wall tiles in shades of gray, a small wooden bench, a white wall-mounted air conditioner, and a white floor.
An outdoor courtyard area in a residential complex with snow on the ground, leafless trees, seating, umbrellas, and grill covers, surrounded by multi-story apartment buildings.
Empty outdoor patio with tables and chairs covered in gray protective covers, some snow patches on the ground, a brick building on the left, leafless trees, a lamp post, and a distant cityscape under a blue sky.
Front view of a church building with stone steps, four lampposts, leafless trees, and residential buildings in the background, on a cold day with snow patches.
Modern hotel lobby with high arched ceilings, large stained glass windows, and contemporary furniture including chairs and sofas. There is a reception desk with a decorative mirror, a geometric light fixture, and holiday decorations.
Interior of a spacious, white domed building decorated for Christmas with Christmas trees, festive decor, and modern lighting fixtures.
Interior of a room divided by ornate black iron gates, with stained glass windows, white columns, and seating areas with chairs and tables.
Elegant hotel lobby decorated for Christmas with Christmas trees, modern lighting, and comfortable seating areas.
Indoor lounge area with high ceilings, stained glass windows, and white walls. Features a kitchenette with blue backsplash, television screens, a high table with stools, and comfortable seating including gray and blue couches, chairs, and tables. Decorated with wreaths and a patterned rug.
A concrete pathway runs through a park with leafless trees and some patches of snow on the ground. In the background, there are multi-story residential buildings, a black lamppost, and a cloudy sky.
Modern multi-story apartment building with large windows, balconies, and parked cars outside under a partly cloudy sky.
A small church with a modern glass facade and a yellow gabled roof, situated in a park with leafless trees and patches of snow on the ground, in an urban area with apartment buildings. A sign reads "Fatima Shrine".

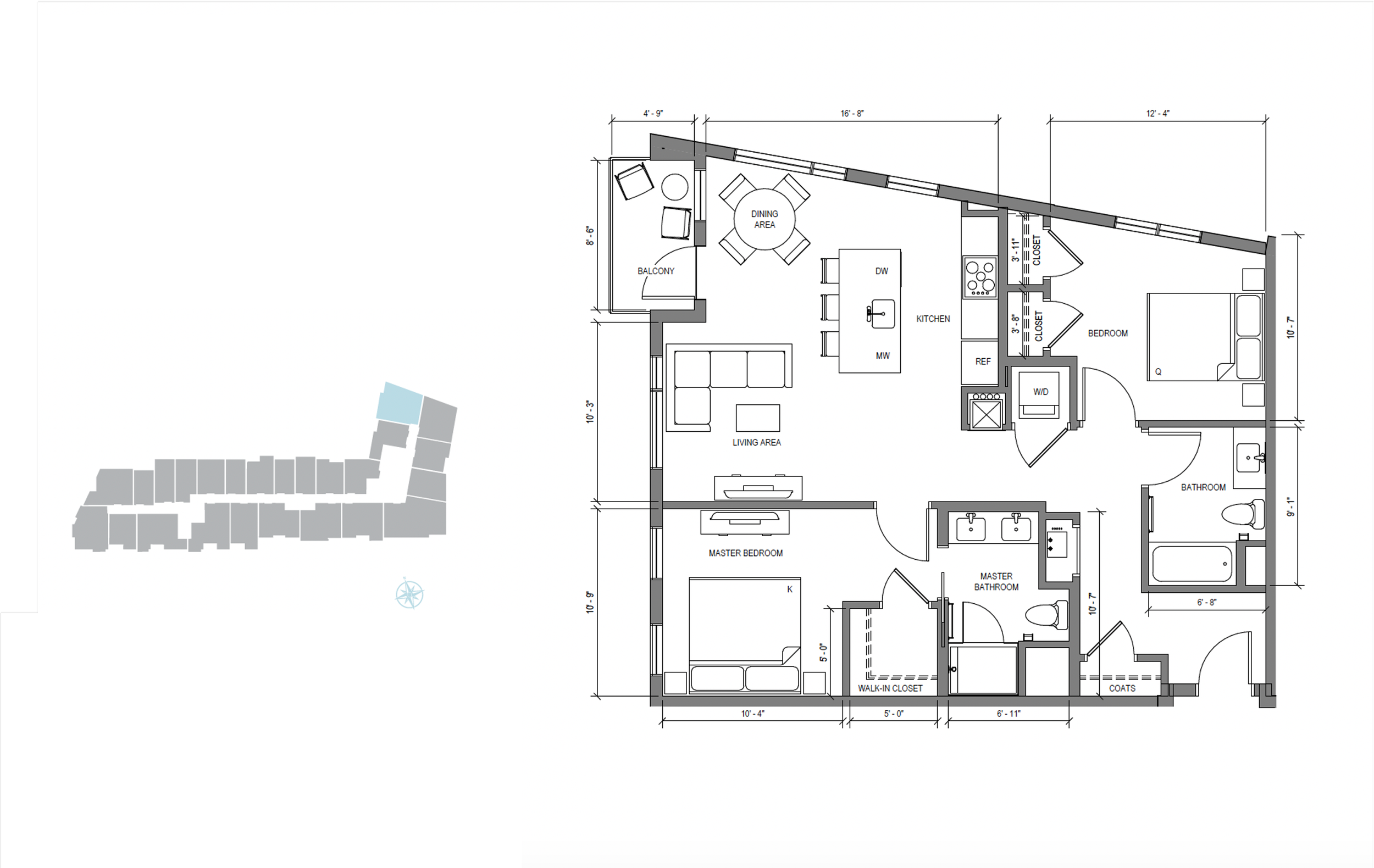
Floor Plans

2 Bedrooms, 2 Baths, 1,018sqf

Additional private storage on same level

2-car deeded garage parking

Level and floor plan of Unit 725

Location